Jokių laukimų – rinkitės iš sandėlio, konfigūruokite ir matykite kainą iškart!

Framex 71 – 6 kamerų langai
Kas yra Framex 71?
Framex 71 – tai patikimi plastikiniai langai su 6 kamerų sistema ir 71 mm gylio profiliu. Jie užtikrina gerą šilumos ir garso izoliaciją, todėl tinka tiek naujiems pastatams, tiek renovacijai.
Kodėl verta rinktis?
Tvirta konstrukcija ir aukštos izoliacinės savybės užtikrina komfortą bei mažesnes šildymo sąnaudas. Dviejų sandarinimo tarpinių sistema garantuoja langų sandarumą ir apsaugą nuo skersvėjų. Langai prieinami iš sandėlio – be laukimo.
Framex 71 privalumai
- 6 kamerų sistema – užtikrina gerą šilumos ir garso izoliaciją.
- 71 mm montavimo gylis – tinkama tiek renovacijai, tiek naujai statybai.
- Dviejų sandarinimo tarpinių sistema – optimalus sandarumas, apsauga nuo skersvėjų ir drėgmės.
- Platus stiklo paketų pasirinkimas – galima rinktis 24 mm arba 42 mm stiklo paketą pagal poreikį.
- Cinkuoto plieno armavimas – suteikia konstrukcijai tvirtumo ir ilgaamžiškumo.
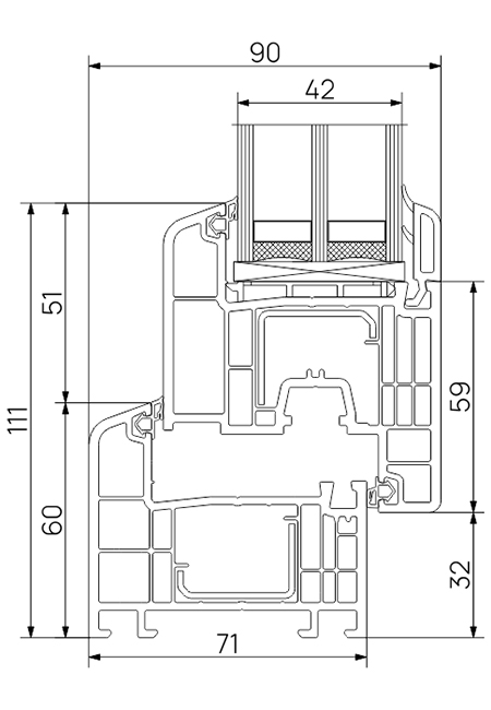
Framex 71 – techninės charakteristikos

Savybė | Parametras |
|---|---|
Montavimo gylis | 71 mm |
Matoma profilio dalis (rėmas + varčia) | 117 mm |
Kamerų skaičius | 6 |
Šilumos perdavimo koeficientas (Uf) | 1,2 W/m²K |
Furnitūra | ROTO NX, ašis 13 mm |
Apsauga nuo įsilaužimo | Iki RC2 |
Stiklo paketo storis | 24 mm, 32 mm, 42 mm |
Distancinis rėmelis | Vientisas lenktas |
Paketo užpildymas | Argono dujos |
Stiklajuostės | Apvalios |
Sandarinimo sistema | 2 tarpinės, TPE |
Šilumos varžos koeficientas (Rf) | 0,85 m²°C/W |
Max varčios dydis | 1600 × 2400 mm |
Max konstrukcijos dydis | 3000 × 3000 mm |
Min konstrukcijos dydis | 400 × 400 mm |
Pagrindinės kameros plotis | 31,5 mm |
Paviršius | Blizgus |
Framex 71 – vaizdas iš lauko ir vidaus


Dekoravimo technologijos – išskirtinis Framex 71 dizainas

Antracitas masėje – modernus vientisas dizainas
„Antracitas masėje“ – unikali TM Framex technologija, kurios dėka visas plastikas yra pilkos spalvos, o ne tik išorinis paviršius. Šis gamybos būdas užtikrina nepriekaištingą estetiką ir ilgaamžiškumą, nepriklausomai nuo eksploatacijos sąlygų.
Spalva išlieka vienoda net pjūvyje – nėra baltų kraštų ar sluoksnių, todėl langai išlaiko harmoningą vaizdą tiek atidarius varčią, tiek žiūrint iš vidaus.
Nereikia papildomos laminacijos, todėl langai atrodo natūraliai elegantiškai ir neturi jokių papildomų sluoksnių, kurie laikui bėgant galėtų atšokti ar nusidėvėti.
Ilgaamžis estetinis sprendimas, išlaikantis spalvos vientisumą per visą eksploataciją – antracito masėje technologija užtikrina, kad net po daugelio metų spalva išliks tolygi, neišbluks ir nepraras sodrumo.
Ši technologija ypač aktuali moderniems pastatams, kuriuose vyrauja minimalistinis dizainas, tamsūs fasadai ar lofto stiliaus eksterjerai. Langai su antracito masėje profiliu puikiai dera su metaliniais, betono ar medžio elementais, suteikdami fasadui solidumo ir išskirtinumo.
Dėl savo aukštos kokybės ir inovatyvaus gamybos metodo Framex 71 „Antracitas masėje“ yra ne tik vizualiai patrauklus, bet ir praktiškas pasirinkimas – nereikalaujantis papildomos priežiūros, atsparus UV spinduliams ir išlaikantis reprezentatyvią išvaizdą per daugelį metų.


PVC laminavimas – daugiau spalvų jūsų langams
Jei ieškote langų, kurie derėtų prie interjero ar fasado dizaino, Framex 71 suteikia galimybę rinktis laminuotus profilius. Galima laminuoti iš vienos arba abiejų pusių, derinant spalvas tiek išorėje, tiek viduje. Laminuoti profiliai yra atsparūs aplinkos poveikiui ir UV spinduliams, todėl išlaiko spalvos vientisumą daugelį metų.
Populiariausios sandėliuojamos spalvos
Visada sandėlyje turimos spalvos:
Antracitas pilkas (58L-2) – modernus pilkas atspalvis, tinkantis šiuolaikiniams pastatams.
Auksinis ąžuolas (89L-2) – natūrali medžio spalva, suteikianti jaukumo.
Riešutas natūralus (25L-2) – klasikinė tamsesnė medžio spalva.
Išplėstas laminuotų spalvų pasirinkimas
Framex 71 laminuotų profilių gamyba plečiama – jau veikia 5 laminavimo linijos, o pagal užsakymą spalvotus profilius pagaminame per 7 dienas.
Papildomas spalvų pasirinkimas:
Antracitas smėlio (59S-2), bazaltas pilkas (46L-2), spindinti bronza (103I-2), matinė juoda (110S-2M), šaltai juoda (110L-2), šokoladinė ruda (69L-2), tamsus ąžuolas (23L-2), mahaogany (27L-2).
Daugiau spalvų – daugiau dizaino galimybių! Framex 71 laminuoti profiliai išlaiko estetiką ir atsparumą ilgus metus.



