Inovatyvi 7 kamerų, 3 tarpinių premium klasės PVC sistema su Smart Comfort technologija. Maksimalus šilumos ir garso izoliacijos lygis, ilgaamžė kokybė ir modernus dizainas.

Framex 80 MD – 7 kamerų plastikiniai langai
Kas yra Framex 80 MD?
Framex 80 MD – tai premium klasės plastikiniai langai su 7 kamerų profiliu, 3 tarpinių sistema ir 80 mm montavimo gyliu. Tai inovatyvi sistema, kuri užtikrina aukščiausią šilumos ir garso izoliaciją, ilgaamžiškumą bei nepriekaištingą dizainą.
Dėl Smart Comfort technologijos šie langai pranoksta įprastus energinio efektyvumo standartus, todėl puikiai tinka A++ klasės pastatams, moderniems projektams ir renovacijai.
Kodėl verta rinktis?
Patobulinta profilio konstrukcija užtikrina dar geresnį šilumos sulaikymą, mažina šildymo išlaidas ir suteikia maksimalų komfortą visais metų laikais.
Trijų sandarinimo tarpinių sistema užtikrina didesnį sandarumą, apsaugą nuo skersvėjų bei drėgmės.
Langai gaminami iš aukščiausios kokybės PVC, todėl jie yra atsparūs aplinkos poveikiui ir išlaiko reprezentatyvią išvaizdą daugelį metų.
Framex 80 MD privalumai
- 7 kamerų sistema – užtikrina maksimalų šilumos ir garso izoliacijos lygį.
- 80 mm montavimo gylis – tinka A++ klasės pastatams ir renovacijai.
- Trijų sandarinimo tarpinių sistema (TPE) – daugiau sandarumo ir apsauga nuo drėgmės.
- Stiklo paketai iki 52 mm – optimalus energinis efektyvumas ir garso izoliacija.
- Cinkuoto plieno armavimas – suteikia konstrukcijai tvirtumo ir ilgaamžiškumo.
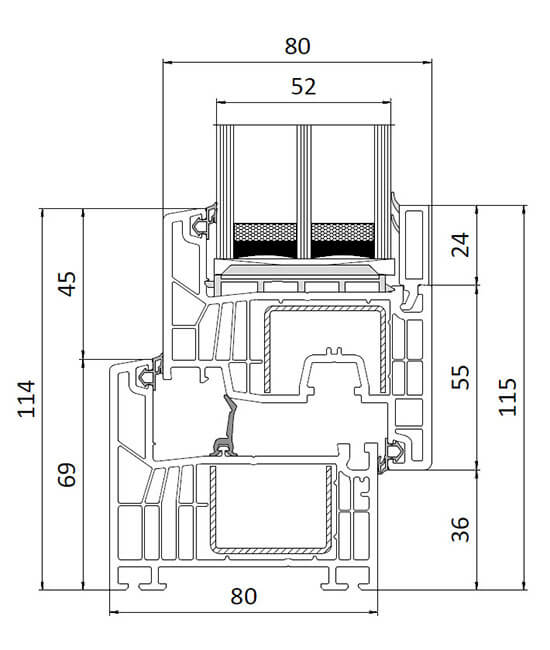
Framex 80 MD – techninės charakteristikos

Savybė | Parametras |
|---|---|
Montavimo gylis | 80 mm |
Matoma profilio dalis (rėmas + varčia) | 115 mm |
Kamerų skaičius | 7 |
Šilumos perdavimo koeficientas (Uf) | 1,1 W/m²K |
Furnitūra | ROTO NX, ašis 13 mm |
Apsauga nuo įsilaužimo | Iki RC2 |
Stiklo paketo storis | 44 mm, 52 mm |
Distancinis rėmelis | Vientisas lenktas |
Paketo užpildymas | Argono dujos |
Stiklajuostės | Apvalios |
Sandarinimo sistema | 3 tarpinės, TPE |
Šilumos varžos koeficientas (Rf) | 0,91 m²°C/W |
Max varčios dydis | 1600 × 2400 mm |
Max konstrukcijos dydis | 3000 × 3000 mm |
Min konstrukcijos dydis | 400 × 400 mm |
Pagrindinės kameros plotis | 41,8 mm |
Paviršius | Blizgus |
Dekoravimo technologijos – išskirtinis Framex 80 MD dizainas

Antracitas masėje – modernus vientisas dizainas
„Antracitas masėje“ – unikali TM Framex technologija, kurios dėka visas plastikas yra pilkos spalvos, o ne tik išorinis paviršius. Šis gamybos būdas užtikrina nepriekaištingą estetiką ir ilgaamžiškumą, nepriklausomai nuo eksploatacijos sąlygų.
Spalva išlieka vienoda net pjūvyje – nėra baltų kraštų ar sluoksnių, todėl langai išlaiko harmoningą vaizdą tiek atidarius varčią, tiek žiūrint iš vidaus.
Nereikia papildomos laminacijos, todėl langai atrodo natūraliai elegantiškai ir neturi jokių papildomų sluoksnių, kurie laikui bėgant galėtų atšokti ar nusidėvėti.
Ilgaamžis estetinis sprendimas, išlaikantis spalvos vientisumą per visą eksploataciją – antracito masėje technologija užtikrina, kad net po daugelio metų spalva išliks tolygi, neišbluks ir nepraras sodrumo.
Ši technologija ypač aktuali moderniems pastatams, kuriuose vyrauja minimalistinis dizainas, tamsūs fasadai ar lofto stiliaus eksterjerai. Langai su antracito masėje profiliu puikiai dera su metaliniais, betono ar medžio elementais, suteikdami fasadui solidumo ir išskirtinumo.
Dėl savo aukštos kokybės ir inovatyvaus gamybos metodo Framex 80 „Antracitas masėje“ yra ne tik vizualiai patrauklus, bet ir praktiškas pasirinkimas – nereikalaujantis papildomos priežiūros, atsparus UV spinduliams ir išlaikantis reprezentatyvią išvaizdą per daugelį metų.


PVC laminavimas – daugiau spalvų jūsų langams
Jei ieškote langų, kurie derėtų prie interjero ar fasado dizaino, Framex 80 MD suteikia galimybę rinktis laminuotus profilius. Galima laminuoti iš vienos arba abiejų pusių, derinant spalvas tiek išorėje, tiek viduje. Laminuoti profiliai yra atsparūs aplinkos poveikiui ir UV spinduliams, todėl išlaiko spalvos vientisumą daugelį metų.
Populiariausios sandėliuojamos spalvos
Visada sandėlyje turimos spalvos:
Antracitas pilkas (58L-2) – modernus pilkas atspalvis, tinkantis šiuolaikiniams pastatams.
Auksinis ąžuolas (89L-2) – natūrali medžio spalva, suteikianti jaukumo.
Riešutas natūralus (25L-2) – klasikinė tamsesnė medžio spalva.
Išplėstas laminuotų spalvų pasirinkimas
Framex 80 MD laminuotų profilių gamyba plečiama – jau veikia 5 laminavimo linijos, o pagal užsakymą spalvotus profilius pagaminame per 7 dienas.
Papildomas spalvų pasirinkimas:
Antracitas smėlio (59S-2), bazaltas pilkas (46L-2), spindinti bronza (103I-2), matinė juoda (110S-2M), šaltai juoda (110L-2), šokoladinė ruda (69L-2), tamsus ąžuolas (23L-2), mahaogany (27L-2).
Daugiau spalvų – daugiau dizaino galimybių! Framex 80 MD laminuoti profiliai išlaiko estetiką ir atsparumą ilgus metus.



