Klasikinė PVC profilio sistema, skirta pastatams, kuriuose šilumos izoliacija nėra pagrindinis prioritetas. Puikus pasirinkimas ūkinės, komercinės paskirties statiniams ar patalpoms, kuriose svarbiausia patikimumas ir ekonomiškumas. Lengvai pritaikoma tiek naujai statybai, tiek renovacijai.

Framex 58 – 4 kamerų plastikiniai langai
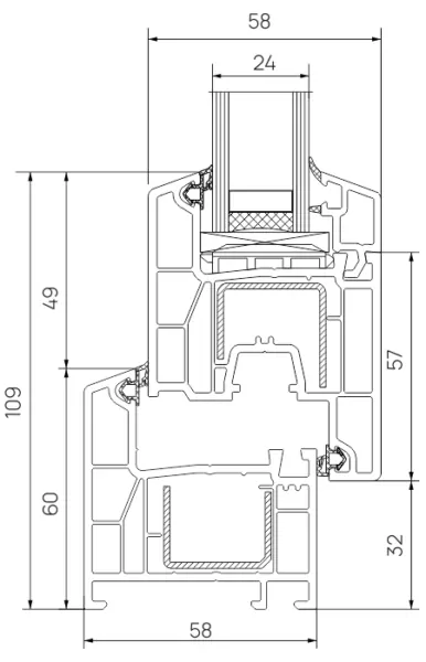
Kas yra Framex 58?
Framex 58 – tai ekonomiškos klasės plastikiniai langai su 4 kamerų profiliu ir 58 mm montavimo gyliu. Ši sistema sukurta pastatams, kuriuose šilumos izoliacija nėra pagrindinis prioritetas, tačiau svarbu patikimumas ir optimali kaina.
Langai tinka komerciniams, ūkinės paskirties pastatams, negyvenamosioms patalpoms bei renovacijai, kur nereikia aukščiausių energinio efektyvumo rodiklių.
Kodėl verta rinktis?
- Paprastas ir patikimas sprendimas – užtikrina pagrindines funkcijas ekonomiškoje klasėje.
- 58 mm montavimo gylis – lengvai pritaikomas įvairiems langų tipams.
- Dviejų sandarinimo tarpinių sistema (TPE) – sandarumas nuo skersvėjų ir drėgmės.
- Stiklo paketai iki 32 mm – pasirinkimas pagal šilumos ir garso izoliacijos poreikius.
- Patraukli kaina – optimali kokybės ir kainos pusiausvyra.
Framex 58 privalumai
- 4 kamerų sistema – subalansuota šilumos ir garso izoliacija.
- 58 mm montavimo gylis – tinka įvairioms statyboms ir renovacijoms.
- Dviejų sandarinimo tarpinių sistema (TPE) – papildomas sandarumas.
- Stiklo paketai 4 mm, 24 mm, 32 mm – pasirinkimas pagal poreikį.
- Cinkuoto plieno armavimas – konstrukcijos tvirtumas ir ilgaamžiškumas.
Framex 58 – techninės charakteristikos

Savybė | Parametras |
|---|---|
Montavimo gylis | 58 mm |
Matoma profilio dalis (rėmas + varčia) | 109 mm |
Kamerų skaičius | 4 |
Šilumos perdavimo koeficientas (Uf) | 1,6 W/m²K |
Furnitūra | ROTO NX, ašis 13 mm |
Apsauga nuo įsilaužimo | Iki RC2 |
Stiklo paketo storis | 4 mm, 24 mm, 32 mm |
Distancinis rėmelis | Vientisas lenktas |
Paketo užpildymas | Argono dujos |
Stiklajuostės | Apvalios |
Sandarinimo sistema | 2 tarpinės, TPE |
Šilumos varžos koeficientas (Rf) | 0,79 m²°C/W |
Max varčios dydis | 1600 × 2400 mm |
Max konstrukcijos dydis | 3000 × 3000 mm |
Min konstrukcijos dydis | 400 × 400 mm |
Pagrindinės kameros plotis | 33,3 mm |
Paviršius | Blizgus |
Dekoravimo technologijos – išskirtinis Framex 58 dizainas

Antracitas masėje – modernus vientisas dizainas
„Antracitas masėje“ – unikali TM Framex technologija, kurios dėka visas plastikas yra pilkos spalvos, o ne tik išorinis paviršius. Šis gamybos būdas užtikrina nepriekaištingą estetiką ir ilgaamžiškumą, nepriklausomai nuo eksploatacijos sąlygų.
Spalva išlieka vienoda net pjūvyje – nėra baltų kraštų ar sluoksnių, todėl langai išlaiko harmoningą vaizdą tiek atidarius varčią, tiek žiūrint iš vidaus.
Nereikia papildomos laminacijos, todėl langai atrodo natūraliai elegantiškai ir neturi jokių papildomų sluoksnių, kurie laikui bėgant galėtų atšokti ar nusidėvėti.
Ilgaamžis estetinis sprendimas, išlaikantis spalvos vientisumą per visą eksploataciją – antracito masėje technologija užtikrina, kad net po daugelio metų spalva išliks tolygi, neišbluks ir nepraras sodrumo.
Ši technologija ypač aktuali moderniems pastatams, kuriuose vyrauja minimalistinis dizainas, tamsūs fasadai ar lofto stiliaus eksterjerai. Langai su antracito masėje profiliu puikiai dera su metaliniais, betono ar medžio elementais, suteikdami fasadui solidumo ir išskirtinumo.
Dėl savo aukštos kokybės ir inovatyvaus gamybos metodo Framex 58 „Antracitas masėje“ yra ne tik vizualiai patrauklus, bet ir praktiškas pasirinkimas – nereikalaujantis papildomos priežiūros, atsparus UV spinduliams ir išlaikantis reprezentatyvią išvaizdą per daugelį metų.


PVC laminavimas – daugiau spalvų jūsų langams
Jei ieškote langų, kurie derėtų prie interjero ar fasado dizaino, Framex 58 suteikia galimybę rinktis laminuotus profilius. Galima laminuoti iš vienos arba abiejų pusių, derinant spalvas tiek išorėje, tiek viduje. Laminuoti profiliai yra atsparūs aplinkos poveikiui ir UV spinduliams, todėl išlaiko spalvos vientisumą daugelį metų.
Populiariausios sandėliuojamos spalvos
Visada sandėlyje turimos spalvos:
Antracitas pilkas (58L-2) – modernus pilkas atspalvis, tinkantis šiuolaikiniams pastatams.
Auksinis ąžuolas (89L-2) – natūrali medžio spalva, suteikianti jaukumo.
Riešutas natūralus (25L-2) – klasikinė tamsesnė medžio spalva.
Išplėstas laminuotų spalvų pasirinkimas
Framex 58 laminuotų profilių gamyba plečiama – jau veikia 5 laminavimo linijos, o pagal užsakymą spalvotus profilius pagaminame per 7 dienas.
Papildomas spalvų pasirinkimas:
Antracitas smėlio (59S-2), bazaltas pilkas (46L-2), spindinti bronza (103I-2), matinė juoda (110S-2M), šaltai juoda (110L-2), šokoladinė ruda (69L-2), tamsus ąžuolas (23L-2), mahaogany (27L-2).
Daugiau spalvų – daugiau dizaino galimybių! Framex 58 laminuoti profiliai išlaiko estetiką ir atsparumą ilgus metus.



