Inovatyvi 7 kamerų, 3 tarpinių premium klasės PVC durų sistema su Smart Comfort technologija. Maksimalus šilumos, garso ir drėgmės izoliacijos lygis, didelis konstrukcijos tvirtumas ir šiuolaikiškas dizainas.

Framex 80 MD – 7/4 kamerų plastikinės durys
Kas yra Framex 80 MD durys?
Framex 80 MD – tai premium klasės PVC durų sistema su 7 kamerų stakta, 4 kamerų varčia, 3 tarpinių sandarinimo sistema ir 80 mm montavimo gyliu. Inovatyvus sprendimas, užtikrinantis aukštą šilumos, garso ir drėgmės izoliacijos lygį, ilgaamžiškumą ir išskirtinį dizainą.
Dėl Smart Comfort technologijos šios durys atitinka net ir aukštus energinio efektyvumo reikalavimus, todėl puikiai tinka moderniems namams, A++ klasės pastatams ir individualiems projektams.
Kodėl verta rinktis Framex 80 MD duris?
- Tai patikimas sprendimas šiuolaikiniams įėjimams, kuriems reikalingas ne tik funkcionalumas, bet ir estetinė išvaizda.
- Durys puikiai derės prie modernių fasadų – glotnus paviršius, minimalistinės linijos ir 90° špaketas suteikia elegancijos.
- Sistema sukurta taip, kad tinka tiek gyvenamiesiems, tiek komerciniams objektams, kur svarbūs izoliacijos, saugumo ir dizaino kriterijai.
- Galimybė pasirinkti iš didelės laminuotų spalvų paletės – durys lengvai priderinamos prie pastato eksterjero ar interjero.
- Papildomos apsaugos galimybės: galima naudoti RC2 klasės priešįsilaužiminę furnitūrą bei stiklą su išoriniu triplex sluoksniu.
- Moderni stiklo paketo įklijavimo technologija leidžia išvengti rėmo deformacijų ir sumažina riziką dėl varčios nusėdimo.
Framex 80 MD privalumai
- 7/4 kamerų sistema – optimalus konstrukcijos balansas tarp tvirtumo ir izoliacijos.
- 80 mm montavimo gylis – puikus sprendimas tiek naujiems, tiek renovuojamiems objektams.
- 3 sandarinimo tarpinės (TPE) – maksimalus sandarumas ir apsauga nuo aplinkos poveikio.
- Stiklo paketai iki 52 mm – geresnė šilumos ir garso kontrolė.
- Stabilios, aukštos konstrukcijos – durys tinka net didelio formato įėjimams.
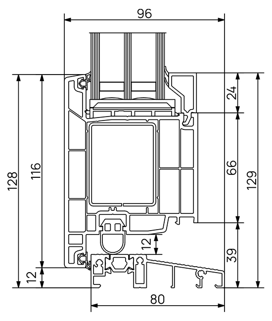
Framex 80 MD PVC durys – techninės charakteristikos

Savybė | Parametras |
|---|---|
Montavimo gylis | 80 mm |
Matoma profilio dalis (rėmas + varčia) | 153 mm |
Kamerų skaičius staktoje | 7 |
Kamerų skaičius varčioje | 4 |
Šilumos perdavimo koeficientas (Uf) | 1,1 W/m²K |
Furnitūra | ROTO, ašis 13 mm |
Apsauga nuo įsilaužimo | Iki RC2 |
Stiklo paketo storis | 44 mm, 52 mm |
Distancinis rėmelis | Vientisas lenktas |
Paketo užpildymas | Argono dujos |
Stiklajuostės | Apvalios |
Sandarinimo sistema | 3 tarpinės, TPE |
Šilumos varžos koeficientas (Rf) | 0,91 m²°C/W |
Max varčios dydis | 1400 × 3000 mm |
Max konstrukcijos dydis | 3000 × 3000 mm |
Min konstrukcijos dydis | 400 × 400 mm |
Pagrindinės kameros plotis | 41,8 mm |
Paviršius | Blizgus |
Framex 80 MD durys – vaizdas iš lauko ir vidaus


Dekoravimo technologijos – išskirtinis Framex 80 MD dizainas

Antracitas masėje – modernus vientisas dizainas
„Antracitas masėje“ – tai pažangi Framex gamybos technologija, kai visa PVC profilio masė yra pigmentuota pilkai, o ne tik padengta spalvotu sluoksniu. Skirtingai nei tradicinė laminacija, čia plastikas savo spalvą išlaiko visame tūryje – tiek paviršiuje, tiek pjūvio vietose, kampuose ar varčios vidinėje pusėje. Dėl to profiliai atrodo estetiškai ne tik iš išorės, bet ir atvėrus langą ar duris.
Spalva išlieka vienoda visose vietose, todėl nėra baltų kraštų, laminacijos sluoksnių ar atšokimų. Ši technologija leidžia sukurti natūraliai vientisą ir solidžią išvaizdą, kuri ypač vertinama šiuolaikiniuose projektuose, kur dizaino vientisumas yra svarbi architektūrinė dalis. Kadangi nereikia papildomo laminavimo, sumažėja eksploatacinių pažeidimų rizika – profiliai netrūkinėja, neatsilupa ir nereikalauja papildomos priežiūros.
„Antracitas masėje“ technologija taip pat užtikrina atsparumą UV spinduliams, temperatūrų svyravimams, krituliams bei kitiems atmosferos poveikiams. Net ir po daugelio metų eksploatacijos langai išlieka vizualiai tvarkingi, o jų spalva neblunka ir nepraranda sodrumo.
Šis sprendimas puikiai tinka moderniems pastatams su minimalistiniu, industriniu ar lofto stiliaus fasadu. Profiliai „antracitas masėje“ puikiai dera su metalu, betonu, medžiu ar tamsiomis fasado medžiagomis. Tokie langai ir durys ne tik atrodo elegantiškai, bet ir išlaiko tą patį estetinį lygį viso naudojimo laikotarpiu.
Dėl šių savybių Framex 80 profiliai su „antracitas masėje“ technologija yra ne tik išvaizdūs, bet ir patikimi – tai sprendimas tiems, kurie vertina ilgaamžiškumą, vientisą dizainą ir aukštą kokybę be papildomos priežiūros.


PVC laminavimas – daugiau spalvų jūsų durims
Ieškantiems durų, kurios idealiai derėtų prie fasado ar interjero apdailos, Framex 80 MD durų sistema suteikia plačias laminacijos galimybes. Profiliai gali būti laminuojami iš vienos arba abiejų pusių, leidžiant derinti skirtingas spalvas durų išorėje ir viduje. Tai ne tik estetinė, bet ir praktiška galimybė – laminuoti profiliai išlieka atsparūs aplinkos poveikiui, UV spinduliams ir išlaiko vientisą spalvą daugelį metų.
Populiariausios sandėliuojamos spalvos
Nuolat turimos spalvos leidžia greičiau įgyvendinti tiek standartinius, tiek individualius projektus:
- Antracitas pilkas (58L-2) – universalus šiuolaikinis atspalvis, derantis su modernia architektūra.
- Auksinis ąžuolas (89L-2) – natūralus, šiltas medžio tonas, tinkantis klasikiniams ir rustic stiliaus sprendimams.
- Riešutas natūralus (25L-2) – sodrus, tamsesnis atspalvis, suteikiantis durims solidumo.
Platus spalvų pasirinkimas pagal užsakymą
Framex gamykloje įrengtos net 5 laminavimo linijos, todėl pagal užsakymą profiliai gali būti laminuojami vos per 7 darbo dienas, išlaikant aukštą kokybę ir tikslų spalvinį suderinimą.
Galimos papildomos spalvos:
Antracitas smėlio (59S-2), bazaltas pilkas (46L-2), spindinti bronza (103I-2), matinė juoda (110S-2M), šaltai juoda (110L-2), šokoladinė ruda (69L-2), tamsus ąžuolas (23L-2), mahagonas (27L-2) ir kiti variantai.
Framex 80 MD durys su laminuotais profiliais suteikia ne tik vizualinį pranašumą, bet ir išsaugo atsparumą, estetiką bei konstrukcijos vientisumą daugelį metų. Daugiau spalvų – tai daugiau galimybių kurti duris, pritaikytas konkrečiam projektui ir architektūriniam sprendimui.



