Efektyvi 5 kamerų PVC sistema su 80 mm gyliu – puiki šilumos izoliacija, patikima kokybė ir stilingas dizainas kasdieniam komfortui.

Framex 80 AD – 5 kamerų plastikiniai langai
Kas yra Framex 80 AD?
Framex 80 AD – tai patikimi ir stilingi plastikiniai langai su 5 kamerų profiliu ir 80 mm montavimo gyliu. Ši sistema sukurta tiems, kas ieško balanso tarp šilumos izoliacijos, kokybės ir kainos, be kompromisų dėl dizaino.
Langai puikiai tinka gyvenamiesiems ir komerciniams pastatams, kuriuose svarbus energinis efektyvumas, tačiau nereikalaujama maksimalaus A++ klasės sprendimo.
Kodėl verta rinktis?
• Tvirta 5 kamerų sistema užtikrina gerą šilumos ir garso izoliaciją.
• 80 mm profilio gylis leidžia naudoti platesnius stiklo paketus ir didina konstrukcijos stabilumą.
• Dviguba sandarinimo sistema padeda apsaugoti nuo skersvėjų ir drėgmės.
• Aukštos kokybės PVC garantuoja atsparumą UV spinduliams, temperatūrų svyravimams ir išlaiko estetiką bėgant metams.
Framex 80 AD privalumai
- 5 kamerų sistema – efektyvi šilumos ir garso izoliacija.
- 80 mm montavimo gylis – patikimumas tiek renovacijai, tiek naujiems projektams.
- Dviguba sandarinimo sistema (AD) – pakankamas sandarumas ir apsauga nuo aplinkos poveikio.
- Stiklo paketai iki 52 mm – optimalus energinis efektyvumas ir garso izoliacija.
- Cinkuoto plieno armavimas – stabilumas ir ilgaamžiškumas.
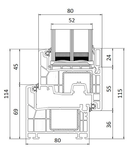
Framex 80 AD – techninės charakteristikos

Savybė | Parametras |
|---|---|
Montavimo gylis | 80 mm |
Matoma profilio dalis (rėmas + varčia) | 115 mm |
Kamerų skaičius | 5 |
Šilumos perdavimo koeficientas (Uf) | 1,3 W/m²K |
Furnitūra | ROTO NX, ašis 13 mm |
Apsauga nuo įsilaužimo | Iki RC2 |
Stiklo paketo storis | 44 mm, 52 mm |
Distancinis rėmelis | Vientisas lenktas |
Paketo užpildymas | Argono dujos |
Stiklajuostės | Apvalios |
Sandarinimo sistema | 3 tarpinės, TPE |
Šilumos varžos koeficientas (Rf) | 0,89 m²°C/W |
Max varčios dydis | 1600 × 2400 mm |
Max konstrukcijos dydis | 3000 × 3000 mm |
Min konstrukcijos dydis | 400 × 400 mm |
Pagrindinės kameros plotis | 41,8 mm |
Paviršius | Blizgus |
Dekoravimo technologijos – išskirtinis Framex 80 AD dizainas

Antracitas masėje – modernus vientisas dizainas
„Antracitas masėje“ – unikali TM Framex technologija, kurios dėka visas plastikas yra pilkos spalvos, o ne tik išorinis paviršius. Šis gamybos būdas užtikrina nepriekaištingą estetiką ir ilgaamžiškumą, nepriklausomai nuo eksploatacijos sąlygų.
Spalva išlieka vienoda net pjūvyje – nėra baltų kraštų ar sluoksnių, todėl langai išlaiko harmoningą vaizdą tiek atidarius varčią, tiek žiūrint iš vidaus.
Nereikia papildomos laminacijos, todėl langai atrodo natūraliai elegantiškai ir neturi jokių papildomų sluoksnių, kurie laikui bėgant galėtų atšokti ar nusidėvėti.
Ilgaamžis estetinis sprendimas, išlaikantis spalvos vientisumą per visą eksploataciją – antracito masėje technologija užtikrina, kad net po daugelio metų spalva išliks tolygi, neišbluks ir nepraras sodrumo.
Ši technologija ypač aktuali moderniems pastatams, kuriuose vyrauja minimalistinis dizainas, tamsūs fasadai ar lofto stiliaus eksterjerai. Langai su antracito masėje profiliu puikiai dera su metaliniais, betono ar medžio elementais, suteikdami fasadui solidumo ir išskirtinumo.
Dėl savo aukštos kokybės ir inovatyvaus gamybos metodo Framex 80 AD „Antracitas masėje“ yra ne tik vizualiai patrauklus, bet ir praktiškas pasirinkimas – nereikalaujantis papildomos priežiūros, atsparus UV spinduliams ir išlaikantis reprezentatyvią išvaizdą per daugelį metų.


PVC laminavimas – daugiau spalvų jūsų langams
Jei ieškote langų, kurie derėtų prie interjero ar fasado dizaino, Framex 80 AD suteikia galimybę rinktis laminuotus profilius. Galima laminuoti iš vienos arba abiejų pusių, derinant spalvas tiek išorėje, tiek viduje. Laminuoti profiliai yra atsparūs aplinkos poveikiui ir UV spinduliams, todėl išlaiko spalvos vientisumą daugelį metų.
Populiariausios sandėliuojamos spalvos
Visada sandėlyje turimos spalvos:
Antracitas pilkas (58L-2) – modernus pilkas atspalvis, tinkantis šiuolaikiniams pastatams.
Auksinis ąžuolas (89L-2) – natūrali medžio spalva, suteikianti jaukumo.
Riešutas natūralus (25L-2) – klasikinė tamsesnė medžio spalva.
Išplėstas laminuotų spalvų pasirinkimas
Framex 80 laminuotų profilių gamyba plečiama – jau veikia 5 laminavimo linijos, o pagal užsakymą spalvotus profilius pagaminame per 7 dienas.
Papildomas spalvų pasirinkimas:
Antracitas smėlio (59S-2), bazaltas pilkas (46L-2), spindinti bronza (103I-2), matinė juoda (110S-2M), šaltai juoda (110L-2), šokoladinė ruda (69L-2), tamsus ąžuolas (23L-2), mahaogany (27L-2).
Daugiau spalvų – daugiau dizaino galimybių! Framex 80 AD laminuoti profiliai išlaiko estetiką ir atsparumą ilgus metus.



